к планировкам

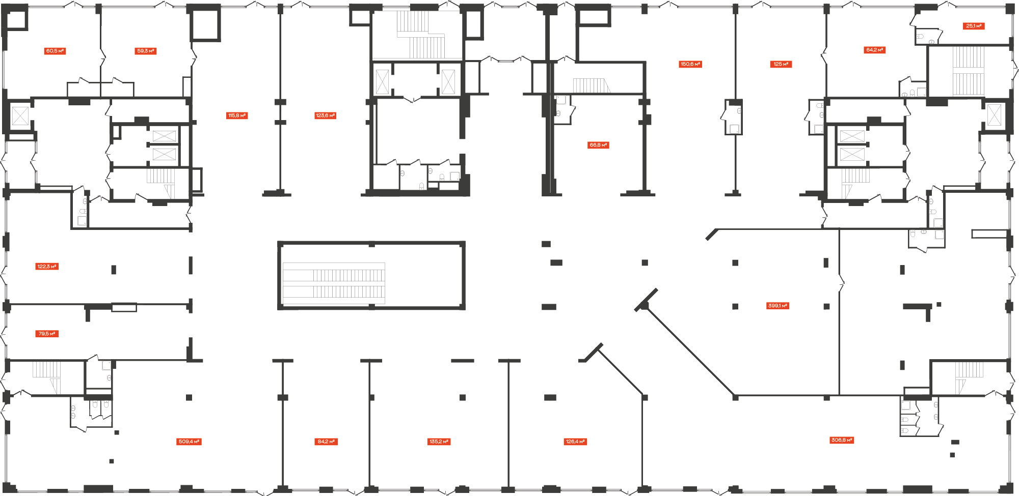
Коммерческое помещение, 66.8 м²

К5
Юнит
Д
Башня
1
Этаж
I квартал 2026 г.
Срок сдачи
66.8 м2
28 056 000 ₽
Ипотека от 63 289 руб./мес.
Коммерческое помещение на плане дома
Башня Д
К5
1 С 66.8 м²
1 этаж
вид на реку
Преимущества коммерческих помещений во FREEDOM
Первый этаж
Трафик
Городские праздники
Отдельный вход
Отсутствие конкуренции
Помещения от 40 до 189 кв. м
Первый этаж
Помещение с прямым доступом с улицы и отдельным входом обеспечит вас постоянным максимально возможным потоком клиентов. Стрит-ритейл FREEDOM находится в самом оживленном месте проекта — на пересечении потоков местных жителей, офисных работников, туристов и гостей города.
Более 22 тыс. чел. ежедневный трафик
Михайловская набережная является одним из самых посещаемых мест в городе. Сюда на прогулку приезжают люди как из различных районов Новосибирска, так и из области. Локация является своего рода достопримечательностью, поэтому вашими клиентами станут, в том числе и гости города.
200 тыс. клиентов на городских праздниках
Городские власти уже традиционно использует Михайловскую набережную как площадку для проведения праздников. Масштабные мероприятия одновременно объединяют до ХХХ тыс. человек. Это дополнительный клиентский канал для вашего бизнеса.
Отдельный вход с Большевистской
Вход в стрит-ритейл находится со стороны Большевистской, через локацию идет большой транспортный поток в сторону Академгородка и «Европейского берега». Вы получите высокий пешеходный и автомобильный трафик. Тысячи людей будут останавливаться здесь, чтобы совершить покупки, получить услуги или просто отдохнуть. Все они ваши потенциальные клиенты. Для зоны разгрузки предусмотрены удобные подъезды без сложных разворотов и утяжеления общего трафика.
Отсутствие конкуренции
На данный момент в локации наблюдается дефицит инфраструктуры. Местные жители едут в соседние районы за покупками и услугами. Здесь будет востребованы рестораны, кофейни, салоны красоты, кабинеты массажа, студии йоги и многое другое.
Помещения от 40 до 189 кв. м
В зоне стрит-ритейла FREEDOM вы легко сможете подобрать площади, соответствующие потребностям вашего бренда, и реализовать любой авторский проект. Например, в линейке стрит-ритейла предусмотрены двухуровневые помещения с видом на Обь с отдельным входом и собственным внутренним двориком.
Получите персональное предложение на покупку недвижимости FREEDOM
Оставьте заявку для получения информации
Другие варианты
Получите персональное предложение на покупку недвижимости FREEDOM
Родион Деревянко
Специалист отдела продаж
Записаться на экскурсию
Получить презентацию
Заказать звонок
Оставьте заявку — и менеджер свяжется с вами
Узнать подробнее
Оставьте заявку — и менеджер свяжется с вами

Ваша заявка отправлена. С вами свяжется менеджер.